I materiali Idrorepellenti utilizzati, rendono la pulizia del box doccia rapida e sicura. - BOX DOCCIA

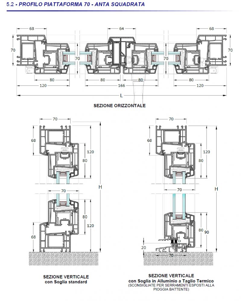
Il tuo ordine verrà preparato e affidato al corriere entro i giorni lavorativi indicati, a partire dalla data di conferma dell'ordine. Riceverai un numero di tracciamento per monitorare lo stato della spedizione.PIATTAFORMA 70
Le finestre REHAU piattaforma 70, con profondità 70 mm, proteggono dal freddo, grazie alla loro straordinaria capacità isolante contribuiscono a tenere lontano spifferi, polvere e umidità e preservano ottimamente anche dai rumori esterni, disponibili in un’ampia gamma di colori per soddisfare qualsiasi esigenza di stile.
Gli infissi in Pvc donano un elevato comfort abitativo grazie alla loro efficienza termoacustica, sono facili da pulire e non temono attacchi da funghi e batteri, richiedono poca manutenzione. Questa tipologia di infissi è molto versatile grazie alle tante finiture e colorazioni disponibili. Inoltre il pvc è un materiale ecologico e leggero ma allo stesso tempo resistente alle condizioni metereologiche più estreme ed ha inoltre con un’elevata resistenza al fuoco.
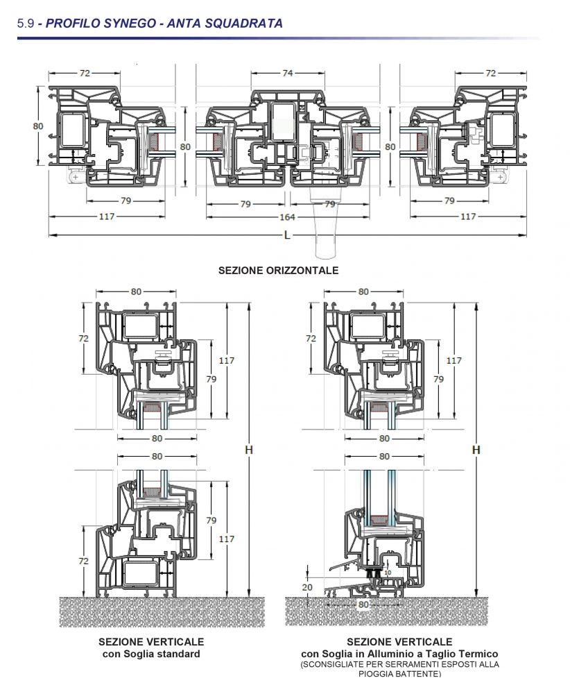
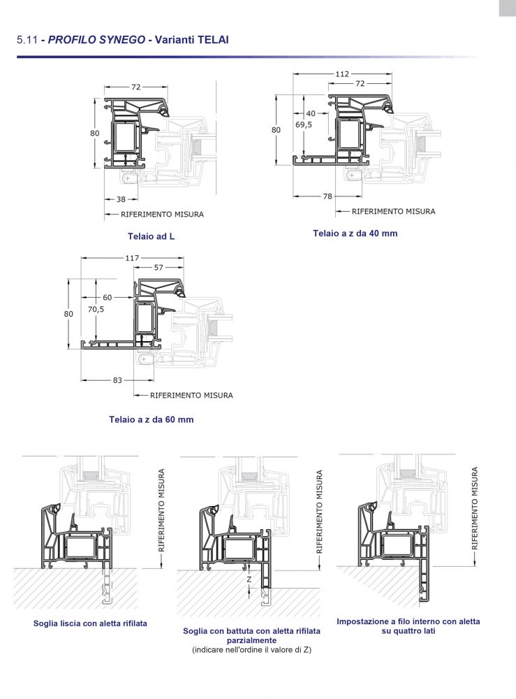
SYNEGO
Con SYNEGO la tua casa diventa calda, accogliente e sicura. Rispetto ad una finestra standard, SYNEGO offre fino al 50% di isolamento termico in più* e ciò significa abbattere i costi di riscaldamento e sperimentare una nuova forma di benessere a cui non vorrai più rinunciare:
Risparmio energetico, grazie all'elevato isolamento termico
Tranquillità, grazie all'ottimo isolamento acustico
Sicurezza, con soluzioni antieffrazione in base alle vostre esigenze
Design, con innumerevoli forme e oltre 50 colori a disposizione
Pulizia e brillantezza grazie alla finitura HDF, unica nel suo genere
Attenzione all'ambiente, grazie ad attività produttive rispettose dell'ambiente
*Finestra standard valore Uw = 1,36W/m²K; con SYNEGO valore Uw = 0,66W/m²K
GENEO
Isolamento termico e non solo: il nucleo del profilo non è in acciaio, ma nell'innovativo materiale hi-tech in fibra composita RAU-FIPRO, che rende la finestra estremamente stabile e leggera. Tutto ciò garantisce eccezionali valori di isolamento termico e caratteristiche inimitabili, che nessun altro sistema è in grado di dare.
Lasciati stupire da GENEO:
Risparmio energetico fino al 76%
Possibilità di realizzare elementi di grandissime dimensioni
Massima protezione antieffrazione
Fino a 24 volte meno rumore, per farvi godere la tranquillità della vostra casa
Nessun limite alla fantasia in termini di design
Semplici da pulire grazie alla superficie HDF dei profili
Disponibile anche nella versione certificata per case passive
Prendere le misure - Contatti - Chi siamo
DocciaBox.com © 2008-2025 ShopNow srl - P.Iva 05216690650 - Tel. 089 9358240
Privacy Policy Cookie Policy Termini e Condizioni Modulo DSAR